STR_HI
STR_HI
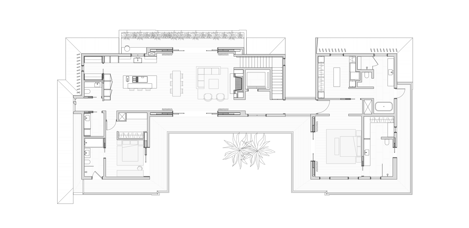
Honolulu, HI
6,000 sf, Duplex Residence
New Construction
2022 - Present (Awaiting Construction)
Architect + Interior Architect
LET'S CONNECT
STR_HI
Honolulu, HI
6,000 sf, Duplex Residence
New Construction
2022 - Present (Awaiting Construction)
Architect + Interior Architect